1.SAA7119及外围电路故障检修
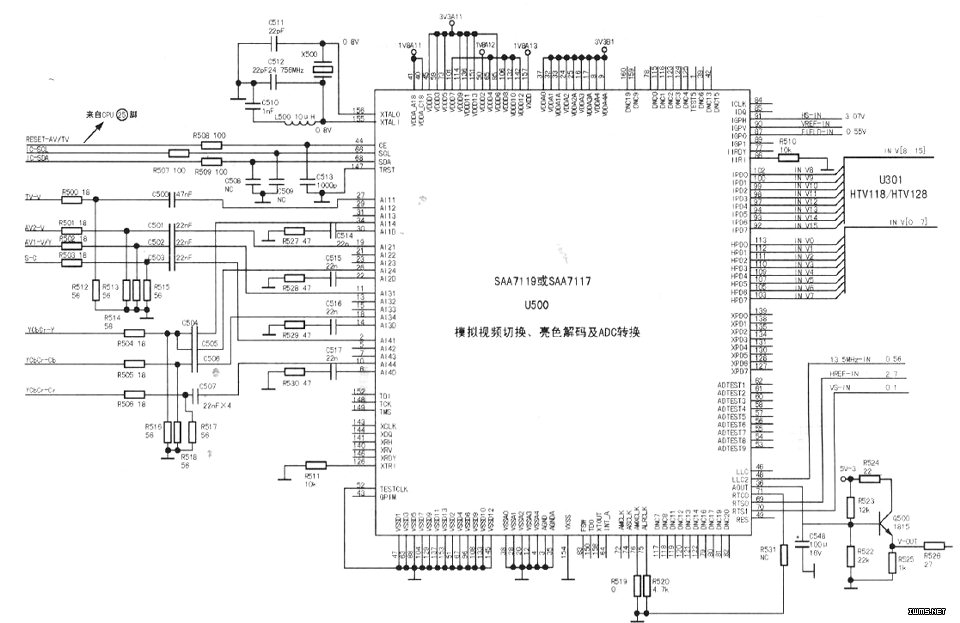
主板调谐器输出的模拟视频信号经插座XS12,插头JN1OO的(17)、(18)脚及电阻R500、电容C500送入SAA7119(27)脚,如下图所示。
有源视频信号选择分为两路,一路模拟视频信号由SAA7119(36)脚输出,经Q500放大后送往主板;另一路被选择的视频信号在SAA7119内经亮、色解码模拟处理,然后送入数字A/D转换电路。SAA7119工作正常时,测量16路数字信号将有波形出现,并且电压都在跳变,否则可确认SAA7119没工作。
SAA7119正常工作除供电要正常外,由U500的(155)、(156)脚组成的24.576MHz晶振电路工作也必须正常。正常时,晶体两脚工作电压为0.8V,否则要查C511、C512、C510是否有问题,若此处有问题会导致无图像或元彩色故障。
SAA7119输出的16位数字信号送往HTV118的通道中断或相关引脚虚焊,会导致TV/AV图像偏色。SAA7119关键引脚及功能见下表。
| 引脚 | 功能 | TV状态 电压(V) |
| 36 | 模拟视频信号输出 | 1.1 |
| 18、19、21、23、26、27、29、31、34 | TV、AV、YCbCr或Y/C信号输入端,可同时输入16路模拟信号,由4路有源输入电路识别选择 | (27)脚(TV-V),1.05V;(29)脚(AV2-V/Y),0.01V;(19)脚(S),1.99V;(34)脚(Y),0.02V;(18)脚(Cb),0.O1V;(10)脚(Cr),0.O1V |
| 6、14、22、30 | 模拟信号进行ADC转换所需参考电压形成电路,外接22nF滤波电容 | 1.05 |
| 44 | 芯片使船信号,高电平有效 | 3.3 |
| 66、68 | 总线输入端 | SCL:1.9V;SDA:2.2V |
| 155、156 | 24.576MHz晶振连接端 | 0.8 |
| 158 | 时钟输出 | 0.73 |
| 126 | 控制(127)~(139)脚及(140)、(141)、(143)、(144)、(146)、(126)脚的输出状态 | 0.01 |
| 69 | 实时工作状态或同步信号输出,受软件控制 | 0.03 |
| 70 | 场同步信号输出 | 0.56 |
| 71 | 实时控制时钟输出 | 0.96 |
| 46 | 行锁定27MHz输出 | 0.09 |
| 48 | 行锁定13.5MHz或54MHz时钟输出 | 1.59 |
| 103、105、107、109~102、113 | 低8位数宇图像信号(INV0~INV7)输出 | 1.15 |
| 102 | 高8位数字图像信号(INV8~INV7)输出 | 1.1 |
| 91 | 行同步信号输出 | 0.56 |
| 90 | 场参考时钟输出 | 0.63 |

2.HTV118关键引脚及外围电路故障检修
TV数字信号处理由IPQ板上的HTV118来完成。该集成电路设有8个脚((52)、(53)及脚)作为前端数字视频行、场同步信号,如下图所示。若上述行场同步信号通道出现问题,将导致接收TV/AV/S/VGA/HDTV信号无图像。另外,24bit图像信号通道出现问题会引起偏色、图像异常故障。
U302、U300分别为HTV118提供2.5V、3.3V工作电压。若U302电路中的L302开路,将出现黑屏(有字符)故障。若与DAC转换有关的脚的外接元件有故障,会导致有伴音、黑屏(无字符)现象。
检修可能由HTV118引起的故障时,可先测RGB信号输出端(3)、(7)、(11)脚电压,正常值约为0.28V~0.3V,若输出电压异常,会造成黑屏、偏色、回扫线故障等现象。HM602总线信号从U301(34)、(35)脚送入,在其内部程控电路进行程序指令交换,以实现数字图像处理。U301(62)脚为复位脚,其工作电压为3.25V。总线电压SDA在2.6V~2.9V之间变化,SCL在2.2V~2.5V之间变化。若HTV118引起的总线电压或复位电压异常,会导致二次不开机。实修不能二次开机故障时,可将U301的(34)、(35)、(62)脚断开,若此时能开机,则故障在HTV118。U401为帧存储器提供3.3V电压,若出现故障,将出现有字符、黑屏故障。另外,如果HTV118与帧存储器间的信号传输通道中的排电阻R400、R406、R403有问题,会出现图像异常、图花或有马赛克现象。HTV118关键引脚及功能见下表。

