首 页文档资料下载资料维修视频汽修在线平台
请登录  |  免费注册
当前位置:精通维修下载 > 文档资料 > 汽车技术 > 汽车维修 > 东风维修实例
东风风神AX7 AT发动机不能起动
来源:本站整理  作者:佚名  2022-04-13 10:16:54

 故障现象:发动机无法起动,将车辆拖回专营店。

1.尝试起动发动机,起动机能正常转动但是发动机无法着车。
2.用专用诊断仪检查有发动机系统有故障码:
可能原因:
1.相关线路故障。
2.相关传感器或执行器故障。
3.发动机ECU故障。
故障检查:
1.测量蓄电池电压13V,起动时蓄电池电压11. 2V,起动机能正常转动,可以排除蓄电池、起动机方面问题。
2.检查燃油压力3. 5bar正常,排出燃油泵故障。检查点火系统发现没有高压火花,拆卸四个火花塞发现无燃油痕迹,测量燃油喷油器起动时无电压,燃油喷油器不喷油。
3.因为此车加装防盗器,怀疑为加装导致,拆除加装设备后进行试车故障依旧。
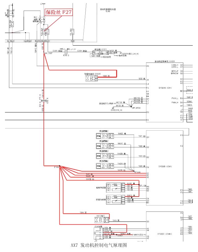
4.清除故障码后再次起动发动机故障码重现,排查线路和保险时发现发动机舱保险丝盒保险丝(F27) 15A熔断,重新更换保险丝后一起动再次熔断根据故障码定义和反复烧发动机控 制单元保险丝可以断定发动机控制线路或传感器执行器等存在短路,测量各相关线路未发 现异常,逐个断开各传感器执行器插接器测试,发现当断开点火线圈插接器时保险丝(F27)没有再熔断。
5.更换一个新的点火线圈,发动机顺利起动,反复试车,故障码排除。
 
    故障排除:通过电路图可以看出,燃油喷射器、前氧传感器、后氧传感器、VVT电磁阀、点火线圈、
碳罐电磁阀共用一根供电线。
优先排除加装造成故障的因素,根据故障码提示,逐个排查解决故障。
维修总结:排除加装因素,根据故障码提示,逐个排查,能顺利找到故障点。
 
相关资料:精通汽修在线平台 99元VIP包年超值体验

关键词:风神AX7

文章评论评论内容只代表网友观点,与本站立场无关!

   评论摘要(共 0 条,得分 0 分,平均 0 分)

推荐阅读

图文阅读

Copyright © 2007-2017 down.gzweix.Com. All Rights Reserved .
页面执行时间:26,927.73000 毫秒